Apartament nad morzem – 30,23 m² Ustronie Morskie
Ustronie Morskie Pokaż na mapie ›
Dodane: Wtorek, 16 Grudzień, 2025 14:53
339 900 zł
11330 zł/m2
Szczegóły ogłoszenia
- Kategoria: Mieszkania / Sprzedaż
- Powierzchnia:30 m2
- Liczba pokoi:1 pokój
- Zabudowa:Apartamentowiec
- Tech. budowy:Inne
- Piętro :Parter
- Liczba pięter:3 piętra
- Rynek:Wtórny
- Rok budowy:2025
- Sprzedaż:Pośrednik
- Inf. dodatkowe:Balkon
- Cena: 339 900 zł / 11330 zł/m2
Opis oferty
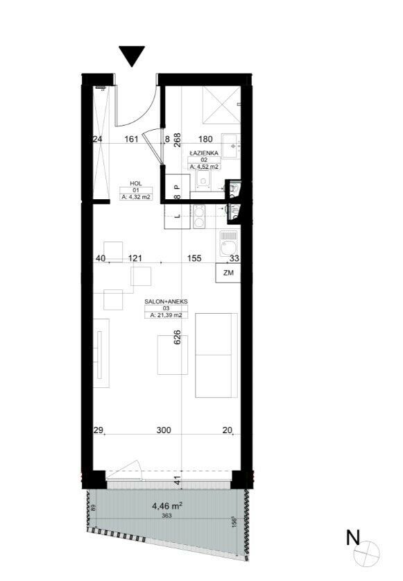
Na sprzedaż apartament typu studio o powierzchni 30,23 m²,położony na parterze eleganckiego, nowoczesnego kompleksu Horizon
Development przy ul. Ogrodowej 1 w Ustroniu Morskim.
Lokal w stanie deweloperskim, gotowy do własnej aranżacji —
idealny do zamieszkania, jako drugi dom wakacyjny lub pewna inwestycja
pod wynajem krótkoterminowy.
Apartament posiada funkcjonalny, przemyślany rozkład:
Hol – 4,32 m²
Łazienka – 4,52 m²
Salon z aneksem kuchennym – 21,39 m²
Balkon / taras – 4,46 m²
Jasne i przestronne wnętrze z dużymi przeszkleniami oraz wyjściem
na balkon/taras zapewnia komfort i szerokie możliwości aranżacyjne.
Lokalizacja – Ustronie Morskie, ul. Ogrodowa 1 Inwestycja
zlokalizowana w kameralnej, spokojnej części Ustronia Morskiego, w
otoczeniu zieleni i nowej zabudowy, zaledwie kilka minut spacerem od
plaży. To miejsce łączy spokój i naturę z dostępem do
nadmorskich atrakcji.
Odległości:
Plaża – ok. 550 m (7 minut spacerem)
Promenada i molo – ok. 850 m
Aquapark Helios – ok. 600 m
Restauracje i kawiarnie – ok. 500 m
Sklepy i piekarnia – ok. 300 m
Stacja PKP – ok. 1,3 km
Ustronie Morskie to urokliwy kurort znany z szerokich plaż, czystego
powietrza oraz licznych tras spacerowych i rowerowych, w tym szlaku
R10 – Nadmorskiego Szlaku Hanzeatyckiego.
!!! OKAZJA CENOWA !!!
Cena: 9 300 zł/m² netto - poniżej ceny ofertowej dewelopera
*Do ceny doliczyć 23% VAT
"Właścicielem ogłoszenia wraz z jego elementami jest Freedom
Nieruchomości Sp. z o.o. lub podmioty współpracujące. Wszelkie
prawa zastrzeżone. Kopiowanie, rozpowszechnianie oraz korzystanie z
niniejszych materiałów w jakikolwiek inny sposób wykraczający poza
dozwolony użytek określony przepisami ustawy z 4 lutego 1994 r. o
prawie autorskim i prawach pokrewnych (Dz. U. 1994, nr 24 poz. 83 z
późn. zm.) bez pisemnej zgody Freedom Nieruchomości Sp. z o.o. lub
podmiotów współpracujących jest zabronione i może stanowić
podstawę odpowiedzialności cywilnej oraz karnej.
Ponadto niniejsze materiały stanowią tajemnicę przedsiębiorstwa
Freedom Nieruchomości Sp. z o.o. lub podmiotów współpracujących w
rozumieniu ustawy z dnia 16 kwietnia 1993 r. o zwalczaniu nieuczciwej
konkurencji (Dz. U. z 2003 r., Nr 153, poz. 1503 z późn. zm.).
Niniejsze ogłoszenie nie stanowi oferty w rozumieniu Kodeksu
Cywilnego, lecz ma charakter informacyjny."
Powiadom o podobnych ogłoszeniach
Lokalizacja: Ustronie Morskie
Kategoria: Nieruchomości » Mieszkania » Sprzedaż
Cena: od 289000 zł do 391000 zł Powierzchnia : od 26 m2 do 35 m2
Chcę otrzymywać powiadomienia o nowych ofertach
Daniel Zmitkiewicz
Konto firmowe
Na Lento.pl od 02 sty 2024
Odpowiada szybko
Strona użytkownika
- Wypromuj ogłoszenie
- Zgłoś naruszenie
- Drukuj ulotkę
- Edytuj/usuń ogłoszenie
- Udostępnij ogłoszenie
- Dodaj na Facebook
